Valion Pitäjänmäen alue
| Vuosi | 2009-2015 |
|---|---|
| Sijainti | Helsinki |
| Laajuus | 4000 m2 |
| Tilaaja | Arabian Palvelu Oy |
| Yhteistyössä | Fesign Oy, Fixstone Oy, Halikon Rautavalu Oy, Suomen Projektiohjelma Oy, Jonecon Oy, Sweco Oy, Savcon Oy, Arkkitehtitoimisto Brunow & Maunula Oy, Ark-House arkkitehdit Oy ja JKMM Arkkitehdit Oy |
| Mitä teimme | pihasuunnittelu sekä taidekokonaisuuden suunnittelu yhteistyössä Kaisa Berryn, Timo Berryn ja Olli Sinivaaran kanssa |
| Palkinnot | Vuoden ympäristörakenne 2016 |
| Kuvat | Maanlumo (1-3, 9) Leena Buller (7), Mika Huisman/Decopic (4, 6, 8) Timo Berry (kansi, 4) |
Hiljentymisen piha on maisema-arkkitehdin, ympäristötaiteilijan, graafikon ja runoilijan ideoima taidepihakokonaisuus, jonka toteutuksesta ovat vastanneet lisäksi taidesepän, viherrakentajien ja insinöörien muodostama huippuammattilaisten ryhmä.
Pihan keskeisenä ajatuksena on ollut, että jokaisen uuden asuinalueen lähiympäristön tulisi olla asukkailleen ainutkertainen. Kotipaikka, joka on tunnistettava, josta voi olla ylpeä ja jonne siksi juurtuu.
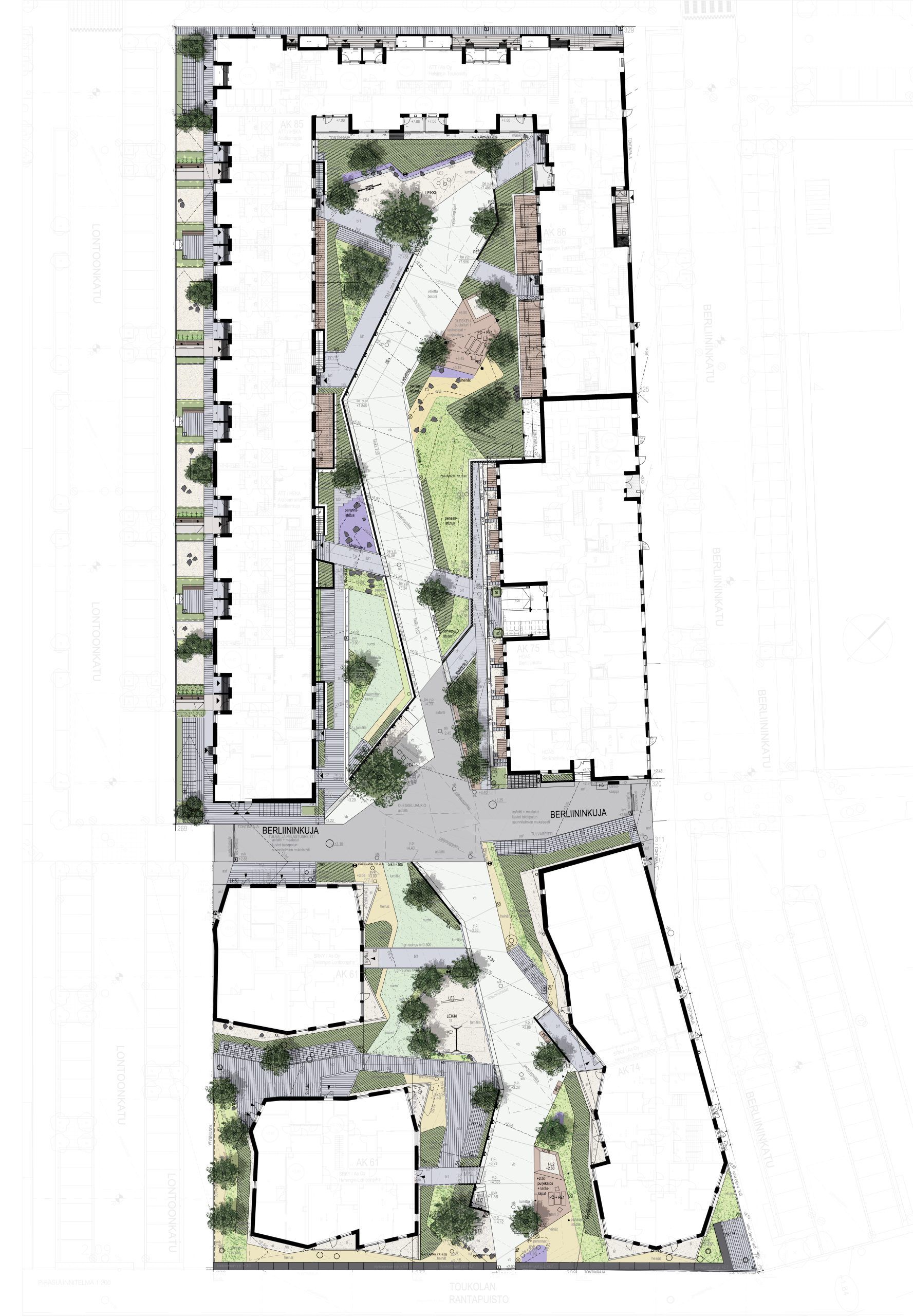
Hiljentymisen piha sijoittuu Vanhankaupunginlahdelle Helsingin kaupungin syntysijoille, Arabianrannan taideteollisen kulttuurin kehtoon ja merellisen luonnonsuojelualueen äärelle. 2010-luvulla näkemyksellisen kaavoituksen seurauksena alueelle syntyi asunto- ja campusalue, jossa prosenttiperiaatteen mukaisesti taide näkyy eri muodoissa mm. 13 yhteiskäyttöisellä korttelipihalla. Hiljentymisen piha on tämän sarjan viimeisimmäksi toteutettu.



Hiljentymisen piha avautuu Vanhankaupunginlahdelle ja avoimeen rantapuistoon. Piha kunnioittaa alati muuttuvaa, rauhoittavaa merellistä maisemaa. Veistoksellisesti muotoiltu pihatila jäsentyy taidemuurien rajaamaan pääreittiin ja sitä reunustaviin istutusalueisiin sekä niiden lomaan jääviin oleskelun ja leikin paikkoihin. Puiset laiturirakenteet, kivet, erilaiset keinut ja purjekatokset luovat merellistä tunnelmaa. Tummat teräsverhoillut muurit johdattavat kulkua näkymiä avaten ja ohjaten. Ne tasaavat pihan korkeuseroja, tarjoavat suojaa ja selustaa. Elämää kuhisevassa asuntokorttelissa hiljentymiseen kutsuvat tilaustyönä tehdyt runot, jotka on kuvioitu muuripintoihin. Sanat heräävät henkiin hämärässä syttyvän valaistuksen myötä.




Korttelin arkkitehtuuriltaan toisistaan erottuvat rakennukset yhdistyvät pihalle luodun selkeän tilallisen ja visuaalisen konseptin kautta harkituksi kokonaisuudeksi. Ainutkertaisuus syntyy ajatuksesta, että paikan menneisyys heijastua tilaan ja paikan haasteet käännetään suunnittelussa voitoksi. Kapean ja suuret korkeuserot sisältävän pihatilan haasteet on ratkaistu tekemällä välttämättömästä pelastusreitistä mielenkiintoinen osa kokonaissommitelmaa. Rouheat, kestävät materiaalivalinnat viittaavat paikan taideteolliseen historiaan. Teräsverhoiltujen muurien ja paikalla valettujen betonipintojen vaativaan toteutukseen, herkkään detaljointiin ja pintakäsittelyihin panostamisella on haluttu jatkaa Arabian taidekäsityöläisyyden perinteen kunnioitusta.

